ООО "СВ ПУЛ"
(495) 320-10-31
info@swpool.ru

НАШ АДРЕС
м. Бибирево СВАО
Дмитровское - Ярославское

ЧАСЫ РАБОТЫ
Понедельник - пятница:
9:00 - 18:00
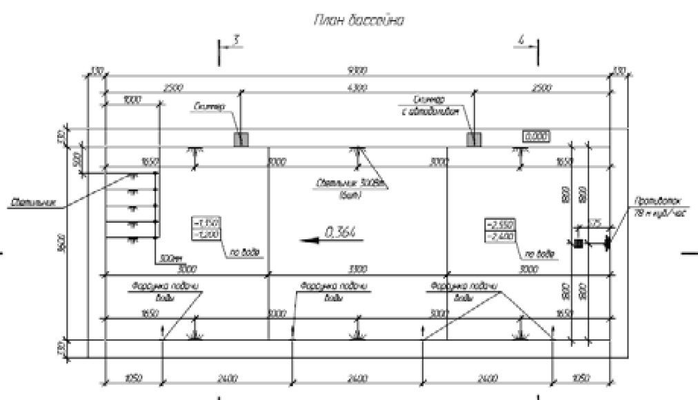
Готовые проекты скиммерных бассейнов (сортировка по длине) - 6 стр.
Размер:
12,6 х 3,5 х 1,4-1,85
Конструкция:
- ЖБ ванна на грунте
- Тех помещение ниже уровня воды
Аттракционы:
- Подсветка
- Водопад
- Противоток
- Гейзер
Состав проекта:
Планы, разрезы, опалубочные планы, план отверстий, схема водоподготовки, план расстановки оборудования, точки подвода коммуникаций, коммерческое предложение
Проект электрики (Тх.ЭМ).
Количество листов:
29
Стоимость:
15000 руб
Шифр:
SK-2011-002
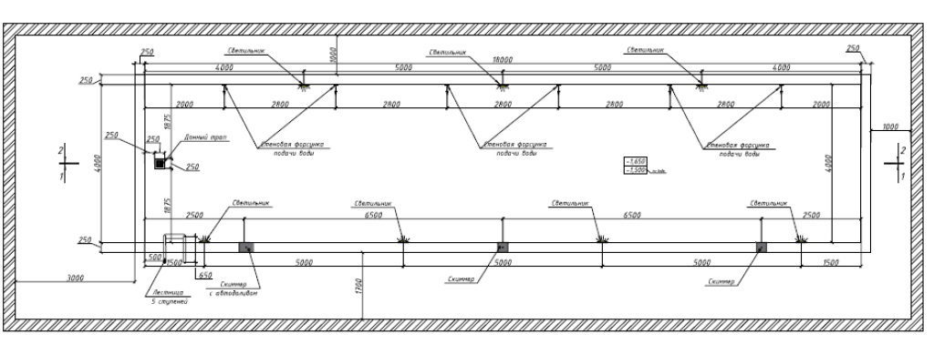
Размер:
15,0 х 4,0 х 1,35 — 1,65
Конструкция:
- ЖБ ванна на опорах
- Техническое подполье
Аттракционы:
- Подсветка
- Противоток
Состав проекта:
Раздел ТХ. Планы, разрезы, опалубочные планы, план отверстий, схема водоподготовки, план расстановки оборудования, точки подвода коммуникаций, коммерческое предложение.
Количество листов:
29
Стоимость:
15000 руб
Шифр:
SK-2011-011
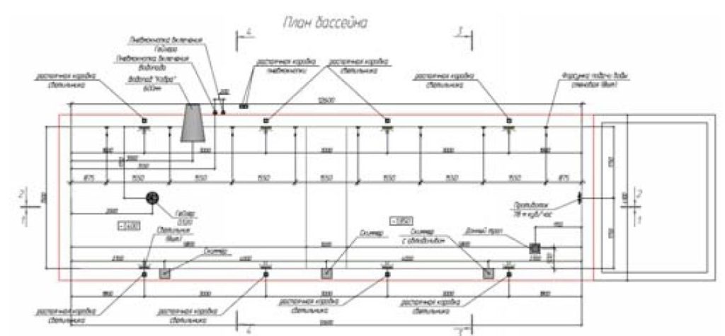
Размер:
18.0 х 4,0 х 1,65
Конструкция:
- Чаша в грунте
Аттракционы:
- Подсветка
Состав проекта:
ТЗ смежникам, планы, разрезы, опалубочные планы, план отверстий, схема водоподготовки, план расстановки оборудования, точки подвода коммуникаций, коммерческое предложение.
Количество листов:
14
Стоимость:
15000 руб
Шифр:
SK-2010-001
Размер:
9,0 х 2,0 х 1,35 — 1,65
Конструкция:
- ЖБ ванна на опорах
- Техничекое подполье
Аттракционы:
- Подсветка
- Противоток
- Гейзер
Состав проекта:
Планы, разрезы, опалубочные планы, план отверстий, схема водоподготовки, план расстановки оборудования, точки подвода коммуникаций, коммерческое предложение.
Количество листов:
22
Стоимость:
15000 руб
Шифр:
SK-2009-003
Размер:
20,3 х 3,2 х 1,75
Конструкция:
- ЖБ ванна на опорах
- Тех помещение в подвале
Аттракционы:
- Подсветка
Состав проекта:
Планы, разрезы, опалубочные планы, план отверстий, схема водоподготовки, план расстановки оборудования, точки подвода коммуникаций, коммерческое предложение.
Количество листов:
14
Стоимость:
15000 руб
Шифр:
SK-2011-001