РАСЧЕТ БАССЕЙНА
ООО "СВ ПУЛ"
(495) 649-01-22
info@swpool.ru
НАШ АДРЕС
м. Бибирево СВАО
Дмитровское - Ярославское
ЧАСЫ РАБОТЫ
Понедельник - пятница:
9:00 - 18:00
Частные бассейны
Общественные бассейны
Проектирование бассейнов
Частные бассейны
Общественные бассейны
Готовые проекты
СНиП, ГОСТ
FAQ
Подготовка воды
Комплекты оборудования
Интернет-магазин
Водные аттракционы
Монтаж оборудования
Химия для бассейна
Конструктивные решения
Железобетонная ванна
Ванна из нержавеющей стали
Стеклопластик
Ванна из полипропилена
Модула
Гидроизоляция
Штукатурка
Облицовка
Бассейн под ключ
Расчет бассейна
Монтаж
Сервис
Фитнес-центры
Аквапарки
Гидромассажные бассейны
Павильоны
Бассейны из стекла
Сауны KLAFS
Авторский надзор
Новости
Статьи
Портфолио
Проектирование
Оборудование
Ванна бассейна
Услуги
Компания
Контакты
Портфолио
Проектирование
Проектирование бассейнов
Частные бассейны
Общественные бассейны
Готовые проекты
СНиП, ГОСТ
FAQ
Оборудование
Подготовка воды
Интернет магазин
Водные аттракционы
Монтаж оборудования
Химия для бассейна
Ванна бассейна
Конструктивные решения
Железобетонная ванна
Ванна из нержавеющей стали
Стеклопластик
Ванна бассейна из полипропилена
Модула
Гидроизоляция
Штукатурка
Облицовка
Услуги
Бассейн под ключ
Расчет бассейна
Монтаж
Сервис
Фитнес центры
Аквапарки
Гидромассажные бассейны
Павильоны
Бассейны из стекла
Сауны KLAFS
Авторский надзор
Компания
Новости
Статьи
Контакты
Главная
/
Проектирование
/
Готовые проекты
/
Скиммерные бассейны
Готовые проекты скиммерных бассейнов (сортировка по длине)
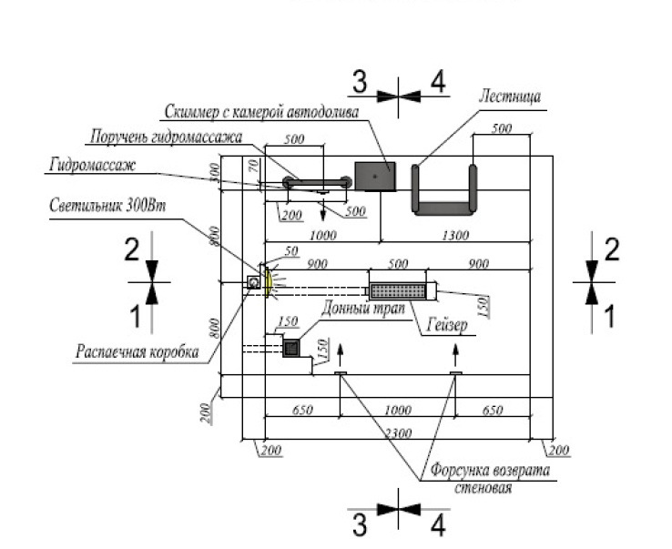
Размер:
2,3 х 1,6 х 1,65
Конструкция:
- Мини бассейн
- Тех помещение выше уровня воды
Аттракционы:
- Подсветка
- Гейзер
- Гидромассаж
Состав проекта:
ТЗ смежникам, планы, разрезы, опалубочные планы, план отверстий, схема водоподготовки, план расстановки оборудования, точки подвода коммуникаций, коммерческое предложение.
Количество листов:
11
Стоимость:
15000 руб
Шифр:
SK-2009-005
Размер:
3,9 х 3,1 х 1,7 — 2,0
Конструкция:
- ЖБ ванна на плите
- Примыкает к стене
- Тех помещение ниже уровня воды
Аттракционы:
- Подсветка
- Противоток
Состав проекта:
Планы, разрезы, опалубочные планы, план отверстий, схема водоподготовки, план расстановки оборудования, точки подвода коммуникаций, коммерческое предложение.
Количество листов:
19
Стоимость:
15000 руб
Шифр:
SK-2010-010
Размер:
4,9 х 2,83 х 1,65
Конструкция:
- ЖБ ванна в грунте
- Тех помещение выше уровня воды
Аттракционы:
- Подсветка
- Противоток
Состав проекта:
Планы, разрезы, опалубочные планы, план отверстий, схема водоподготовки, план расстановки оборудования, точки подвода коммуникаций, коммерческое предложение.
Количество листов:
17
Стоимость:
15000 руб
Шифр:
SK-2010-009
Размер:
5,0 х 3,2 х 1,5-1,8
Конструкция:
- ЖБ ванна на опорах
- Тех помещение в подвале
Аттракционы:
- Подсветка
- Противоток
Состав проекта:
Планы, разрезы, опалубочные планы, план отверстий, схема водоподготовки, план расстановки оборудования, точки подвода коммуникаций, коммерческое предложение.
Количество листов:
19
Стоимость:
15000 руб
Шифр:
SK-2010-002
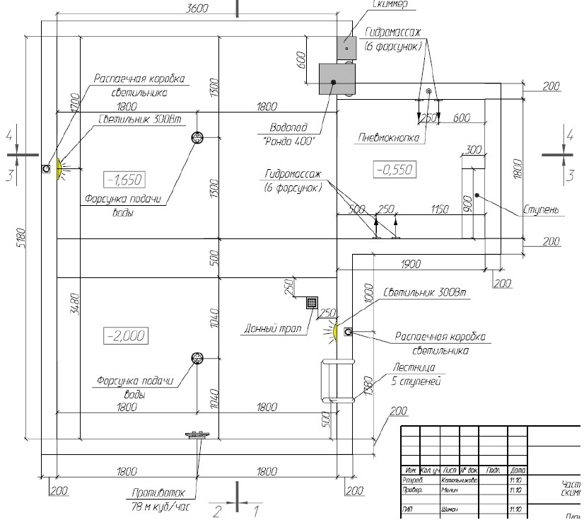
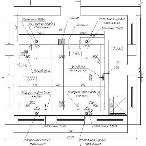
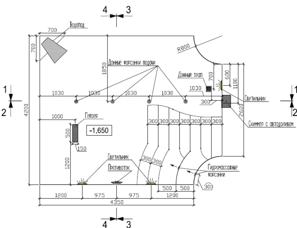
Размер:
5,2 х 3,6 х 1,65-2,0
Конструкция:
- ЖБ ванна на плите с сидячими гидромассажными местами
Аттракционы:
- Подсветка
- Противоток
- Гидромассаж
- Водопад
Состав проекта:
Планы, разрезы, опалубочные планы, план отверстий, схема водоподготовки, план расстановки оборудования, точки подвода коммуникаций, коммерческое предложение.
Количество листов:
24
Стоимость:
15000 руб
Шифр:
SK-2010-007
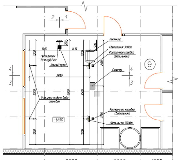
Размер:
5,2 х 4,2 х 1,65
Конструкция:
- ЖБ ванна примыкающая к стенам
- Тех помещение ниже уровня воды
Аттракционы:
- Подсветка
- Водопад
- Гидромассаж
- Противоток
- Гейзер
Состав проекта:
Планы, разрезы, опалубочные планы, план отверстий, схема водоподготовки, план расстановки оборудования, точки подвода коммуникаций, коммерческое предложение.
Количество листов:
21
Стоимость:
15000 руб
Шифр:
SK-2010-022
Размер:
5,7 х 2,5 х 1,75
Конструкция:
- ЖБ ванна на опорах
- Техническое подполье
Аттракционы:
- Подсветка
- Гидромассаж
- Противоток
Состав проекта:
Планы, разрезы, опалубочные планы, план отверстий, схема водоподготовки, план расстановки оборудования, точки подвода коммуникаций, коммерческое предложение.
Количество листов:
22
Стоимость:
15000 руб
Шифр:
SK-2010-020
1
2
3
4
5
6
Следующая страница