РАСЧЕТ БАССЕЙНА
ООО "СВ ПУЛ"
(495) 649-01-22
info@swpool.ru
НАШ АДРЕС
м. Бибирево СВАО
Дмитровское - Ярославское
ЧАСЫ РАБОТЫ
Понедельник - пятница:
9:00 - 18:00
Частные бассейны
Общественные бассейны
Проектирование бассейнов
Частные бассейны
Общественные бассейны
Готовые проекты
СНиП, ГОСТ
FAQ
Подготовка воды
Комплекты оборудования
Интернет-магазин
Водные аттракционы
Монтаж оборудования
Химия для бассейна
Конструктивные решения
Железобетонная ванна
Ванна из нержавеющей стали
Стеклопластик
Ванна из полипропилена
Панельные бассейны
Гидроизоляция
Штукатурка
Облицовка
Бассейн под ключ
Расчет бассейна
Монтаж
Сервис
Фитнес-центры
Аквапарки
Гидромассажные бассейны
Павильоны
Бассейны из стекла
Сауны KLAFS
Авторский надзор
Новости
Статьи
Портфолио
Проектирование
Оборудование
Ванна бассейна
Услуги
Компания
Контакты
Портфолио
Проектирование
Проектирование бассейнов
Частные бассейны
Общественные бассейны
Готовые проекты
СНиП, ГОСТ
FAQ
Оборудование
Подготовка воды
Интернет магазин
Водные аттракционы
Монтаж оборудования
Химия для бассейна
Ванна бассейна
Конструктивные решения
Железобетонная ванна
Ванна из нержавеющей стали
Стеклопластик
Ванна бассейна из полипропилена
Модула
Гидроизоляция
Штукатурка
Облицовка
Услуги
Бассейн под ключ
Расчет бассейна
Монтаж
Сервис
Фитнес центры
Аквапарки
Гидромассажные бассейны
Павильоны
Бассейны из стекла
Сауны KLAFS
Авторский надзор
Компания
Новости
Статьи
Контакты
Главная
/
Проектирование
/
Готовые проекты
/
Переливные бассейны
Готовые проекты переливных бассейнов (сортировка по длине) - стр. 4
Размер:
11,7 х 4,0 х 1,3-2,0
Конструкция:
- ЖБ ванна бассейна на опорах
- Тех помещение в цокольном этаже
Аттракционы:
- Подсветка
- Противоток
- Гидромассаж
- Жалюзное подводное покрытие
Состав проекта:
Планы, разрезы, опалубочные планы, план отверстий, схема водоподготовки, план расстановки оборудования, точки подвода коммуникаций, коммерческое предложение.
Количество листов:
18
Стоимость:
15000 руб
Шифр:
PL-2014-005
Размер:
12,0 х 3,5 х 1,5 — 2,0
Конструкция:
- ЖБ ванна бассейна на опорах
- Тех помещение в цокольном этаже
Аттракционы:
- Подсветка
- Противоток
- Гидромассаж
- Гейзер
Состав проекта:
Планы, разрезы, опалубочные планы, план отверстий, схема водоподготовки, план расстановки оборудования, точки подвода коммуникаций, коммерческое предложение.
Количество листов:
22
Стоимость:
15000 руб
Шифр:
PL-2012-005
Размер:
13,2 х 5,5 х 1,4 — 1,9
Конструкция:
- ЖБ ванна бассейна на опорах
- Закругленные края
- Тех помещение в цокольном этаже
Аттракционы:
- Подсветка
- Противоток
- Гидромассаж
Состав проекта:
Планы, разрезы, опалубочные планы, план отверстий, схема водоподготовки, план расстановки оборудования, точки подвода коммуникаций, коммерческое предложение.
Количество листов:
23
Стоимость:
15000 руб
Шифр:
PL-2014-002
Размер:
13,5 х 3,75 х 1,2 — 1,75
Конструкция:
- ЖБ ванна бассейна на опорах
- Тех помещение в цокольном этаже
Аттракционы:
- Подсветка
- Противоток
Состав проекта:
Планы, разрезы, опалубочные планы, план отверстий, схема водоподготовки, план расстановки оборудования, точки подвода коммуникаций, коммерческое предложение.
Количество листов:
18
Стоимость:
15000 руб
Шифр:
PL-2013-005
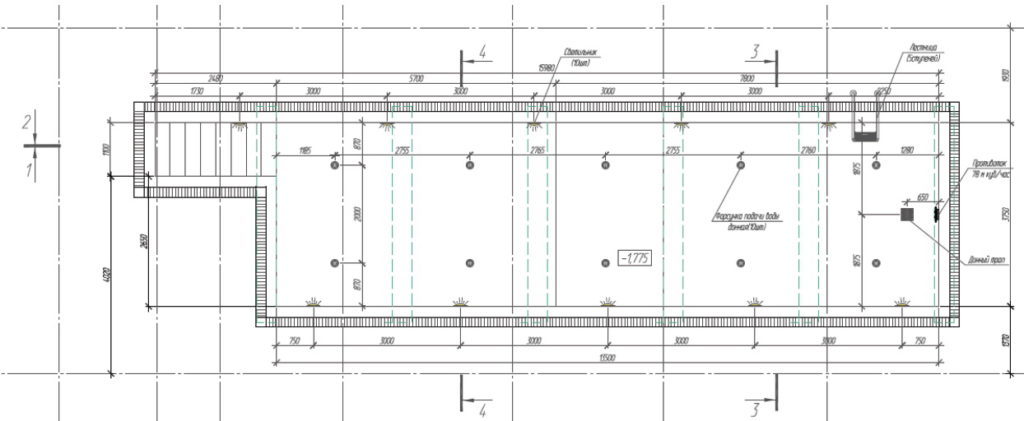
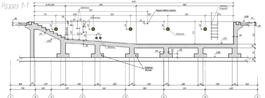
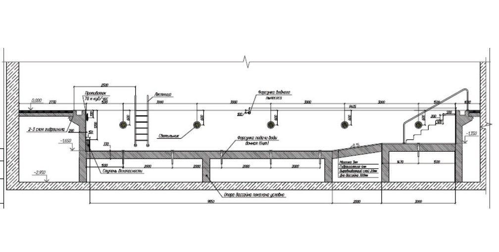
Размер:
15,0 х 2,4 х 1,3 — 1,7
Конструкция:
- ЖБ ванна бассейна на опорах
- Тех помещение в цокольном этаже
Аттракционы:
- Подсветка
- Противоток
- Водопад
- Гидромассаж
- Гейзер
Состав проекта:
Планы, разрезы, опалубочные планы, план отверстий, схема водоподготовки, план расстановки оборудования, точки подвода коммуникаций, коммерческое предложение.
Количество листов:
26
Стоимость:
15000 руб
Шифр:
PL-2013-003
Размер:
15,0 х 4,0 х 1,35 — 1,65
Конструкция:
- ЖБ ванна бассейна на опорах
- Тех помещение в цокольном этаже
Аттракционы:
- Подсветка
- Противоток
- Водопад
- Гидромассаж
- Гейзер
Состав проекта:
Планы, разрезы, опалубочные планы, план отверстий, схема водоподготовки, план расстановки оборудования, точки подвода коммуникаций, коммерческое предложение.
Количество листов:
24
Стоимость:
15000 руб
Шифр:
PL-2011-008
Размер:
15,0 х 6,0 х 1,3 — 1,8
Конструкция:
- ЖБ ванна бассейна на опорах
- Тех помещение в цокольном этаже
Аттракционы:
- Подсветка
- Противоток
- Водопад
- Гидромассаж
- Гейзер
Состав проекта:
Планы, разрезы, опалубочные планы, план отверстий, схема водоподготовки, план расстановки оборудования, точки подвода коммуникаций, коммерческое предложение.
Количество листов:
25
Стоимость:
15000 руб
Шифр:
PL-2011-016
Размер:
18,0 х 5,6 х 1,4 — 2,2
Конструкция:
- ЖБ ванна бассейна на опорах
- Тех помещение в цокольном этаже
Аттракционы:
- Подсветка
- Противоток
- Гидромассаж
Состав проекта:
Планы, разрезы, опалубочные планы, план отверстий, схема водоподготовки, план расстановки оборудования, точки подвода коммуникаций, коммерческое предложение.
Количество листов:
25
Стоимость:
15000 руб
Шифр:
PL-2010-003
Предыдущая страница
1
2
3
4